【机情无限 精彩毕设】机械2024届毕业设计(论文)中期检查优秀案例分享第十九期——基于轮轨噪声抑制的地铁钢轨颗粒阻尼装置设计研究
员工姓名:祝嘉阳
班学号级:车辆2020-04班
指导教师:韩健
毕设题目:基于轮轨噪声抑制的地铁钢轨颗粒阻尼装置设计研究
一、概况
1.选题意义
在城市轨道交通快速发展的同时,人们对轨道交通的乘坐舒适性和减振降噪提出了更高的要求,地铁是城轨交通中的重要组成部分。列车运行时发出的噪声主要分为轮轨噪声、牵引噪声、气动噪声以及结构系统噪声,其中轮轨噪声是地铁运行过程的最显著声源,而钢轨噪声又在轮轨噪声中占主导地位,对钢轨噪声进行有效控制,有利于降低轮轨噪声源,进而降低地铁列车运行的噪声水平。
本设计针对轮轨噪声抑制设计钢轨颗粒阻尼装置具有重要意义。本课题旨在通过地铁钢轨颗粒阻尼装置设计的训练,培养员工该方面的设计能力,在设计中扩展所学知识,在实践中了解和掌握地铁钢轨颗粒阻尼的设计方法、步骤,培养员工的设计能力,并为发展我国的城市轨道交通产业绿色环保提供一定的借鉴和支撑。培养员工正确的工程设计思想和理论联系实际的工作作风,为员工今后从事实际工程项目的分析、研究、设计等方面的工作提供一定的帮助。
2.任务分解
1.资料查阅及外文文献翻译:根据设计任务书大量检索和阅读国内外文献,了解该选题在国内外的研究情况,了解轮轨噪声机理、动力吸振器减振机理和结构组成,在此基础上理清设计思路,为进一步的设计分析奠定理论基础和提供实践支撑。
2.确定钢轨颗粒阻尼装置设计方案并绘制A0图纸两张:在大量查阅和整理国内外文献的基础上,进行钢轨颗粒阻尼装置的结构设计,并绘制两张钢轨颗粒阻尼装置A0图纸,为之后的建模分析提供图纸依据。
3.考虑颗粒阻尼装置的轮轨噪声建模:利用轮轨噪声计算软件,建立考虑颗粒阻尼装置的轮轨噪声计算模型。
4.钢轨颗粒阻尼装置对轮轨噪声的抑制效果分析:根据模型分析钢轨颗粒阻尼装置对轮轨噪声的抑制效果,整理分析结果并得出最终结论。
5.毕业设计说明书撰写并提交:整理并总结所得到的数据和结论,严格按照说明书撰写规范完成毕业设计说明书。
二、已完成工作
1.资料查阅及外文文献翻译
根据设计任务书大量检索和阅读了国内外文献,了解了该选题在国内外的研究现状,了解了轮轨噪声机理、动力吸振器减振机理和结构组成,完成了文献的查阅和外文文献的翻译。


图 1.文献原文与翻译成果
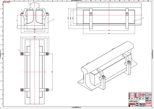
2.钢轨颗粒阻尼装置设计方案和A0图纸绘制
确立了钢轨颗粒阻尼装置的结构设计方案,在SolidWorks上建立了三维模型。初步绘制了A0图纸装配图和零件图。

图 2.阻尼器A0图纸
3.考虑颗粒阻尼装置的轮轨噪声建模
在Ansys中对车轮,普通钢轨和阻尼钢轨进行建模和体网格划分。
在HyperMesh中进行各构件边界元网格的划分。
在Adams中通过质量集中的方法简化夹具,建立阻尼钢轨基本结构。
在Edem中对阻尼器进行颗粒填充。


图 3-1.各构件的Ansys结构网格

图 3-2.各构件的HyperMesh边界元网格
图3-3.阻尼钢轨的Adams建模
表 3.颗粒阻尼参数
参数名 | 数值 |
颗粒直径 颗粒材料密度 颗粒恢复系数 颗粒静摩擦系数 颗粒滚动摩擦系数 单边颗粒填充数 填充率 | 4mm 7801kg/ 0.565 0.2 0.005 30000 88% |
图 3-4.Edem填充静置后的颗粒阻尼器
4.钢轨颗粒阻尼装置对轮轨噪声的抑制效果分析
在Adams中设定激励大小,控制钢轨在无颗粒状态下产生2mm以内振幅的振动。
建立耦合关系,通过联合求解器将Edem中填充颗粒的阻尼器连接到Adams对应部件上,使得Edem离散元仿真中的接触载荷信息能和Adams动力学计算中的结构位移信息做交换,控制钢轨在相同激励下产生有颗粒状态的振动。
耦合仿真范围0~0.2s,步数400000步,得到阻尼钢轨的振动曲线。
利用时域衰减法对得到的振动曲线进行计算分析,得出阻尼器的阻尼比为0.09,为阻尼钢轨的Ansys仿真做准备。
图 4-1.阻尼钢轨振动曲线
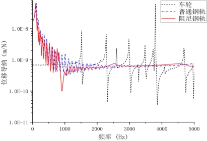
在Ansys中分别对车轮、普通钢轨和阻尼钢轨设置单位力激励,进行谐响应分析计算。其中对于阻尼钢轨的阻尼器部分的阻尼比,密度等参数,设置为耦合仿真中计算得出的数值。
仿真范围0~5000Hz,计算步长20Hz,得到各部件在单位力下的位移导纳。
图 4-2.各部件的位移导纳
在Virtual.Lab中分别对车轮、普通钢轨和阻尼钢轨进行噪声仿真。导入Ansys中的结构网络和HyperMesh中的边界元网格,将ANSYS仿真中得到的振动数据导入并转换到边界元网格上。
仿真范围0~5000Hz,计算步长20Hz,得到各部件在单位力下的声功率大小。

图 4-3.Virtual.Lab声学仿真 图 4-4.各构件声功率(单位力)
组合车轮和钢轨的Ansys振动数据,计算得出0~5000Hz范围内系统的动态轮轨力大小,结合Virtual.Lab的噪声仿真结果进行综合计算,得到各部件在轮轨力作用下的声功率大小。
图 4-5.各构件声功率(轮轨力)
在此基础上组合车轮和钢轨的声功率数据,分别计算得出普通刚轨和阻尼钢轨的轮轨声功率。
图 4-6.轮轨声功率
最终计算得出0~5000Hz范围内,普通钢轨总噪声为105.6dB(A),阻尼钢轨总噪声为103.3dB(A),实现了2.3dB(A)的整体噪声抑制效果。阻尼钢轨在1000~4500Hz的频率范围内噪声抑制效果较好。
三、下一步工作计划
1.优化图纸:在当前结构的基础上,根据图纸提交标准要求对A0装配图和零件图进行纠错和优化。
2.调查参数:在当前参数基础上,选择三个不同的颗粒填充率和三种不同的颗粒粒径大小进行上述仿真流程的计算,分析得出的声功率结果,选择噪声抑制效果最优的一组参数作为最终设计参数。
3.完成毕业设计说明书:合理利用仿真计算时间,整理并总结所得到的数据和结论,严格按照毕业设计规范,逐步开始撰写毕业设计说明书。
问题一:你的设计流程使用的软件众多,如何去判断衔接过程的仿真结果是否可用?
回答:得益于各个结构自身性质,无论是振动仿真还是噪声仿真的结果数据曲线都有其独特的基本特征。通过曲线的特征表象以及与相关参考文献结果数据的对比,就可以得知计算结果的正确性。
问题二:你介绍到整个流程的仿真时间成本较大,有没有进一步缩减时间的方法。
回答:对于仿真时间,已经在当前条件下进行了尽力的优化,在不影响结果精度的前提下没有进一步显著缩减用时的办法。我将在后续的参数优化过程中交叉安排进度,合理运用软件仿真时间推进其他任务,在整体时间上实现的高效利用。
我的毕业设计流程中涉及了Ansys、Edem、Adams和Virtual.Lab等众多软件的应用,其中大多数是我此前从未接触的。对这些软件的学习和运用过程中我遇到了相当多的困难和挑战,我也因此得到了极大的锻炼。我对如何在有限的时间内去学习、运用知识有了更为深刻的理解,对如何去排查、判断和解决未知的问题有了更加全面的认识。不只是新工具,对接触过的软件的运用也给我带来了很多成长,让我在使用熟悉软件处理不熟悉任务的过程中大大巩固了这些软件的相关知识,拓展了对这些软件的理解。
在推进毕业设计任务的过程中我同样学到了很多。对文献的查阅和参考让我对此前学习的专业知识有了更切实的体会;对结构和参数的思考培养了我该方面的设计能力,扩展了我的学识;对结构和仿真任务的推进让我了解了设计工作的方法、步骤,培养了我正确的工程设计思想和理论联系实际的工作作风。相信这次毕业设计任务可以为我今后从事实际工程项目的分析、研究、设计等方面的工作提供大量的帮助。
我衷心感谢韩老师和同门前辈对我的帮助,如果没有他们的耐心解答,我将受困于许多超出我解决能力的问题,正是有他们的答疑解惑,我才能扎实顺利地推进我的设计任务。接下来我会继续稳步推进任务,踏实完成我的毕业设计。